新築一戸建住宅
「利回り」は、当該不動産の1年間の予定賃料収入の不動産取得対価に対する割合であり、公租公課その他当該物件を維持するために必要な費用の控除前のものです。
また、予定賃料収入が確実に得られる事を保証するものではありません。

賑やか大家族さんにオススメ
敷地たっぷり41.7坪 延床33.9坪の大型4LDK
南西北西の角地 開放感ある美しいロケーション ぽかぽかあったか南向き
街並みキレイ 美しい住宅が建ち並ぶ、展示場のような佇まい
カースペース3台 前面道路、交通量少なめ

※地図上の物件位置は近隣に物件が所在することを表すものであり、実際の物件所在地とは異なる場合がございます。
047-710-7016
営業時間:9:30~18:30 / 定休日:水
| 所在地 | 千葉県柏市加賀2丁目 | ||
|---|---|---|---|
| 交通 |
東武野田線 「増尾」駅
徒歩12分 常磐緩行線 「南柏」駅 徒歩34分 バス23分 増尾西小学校前下車 徒歩9分 |
||
| 価格 | 5,299万円 | ||
| 間取り |
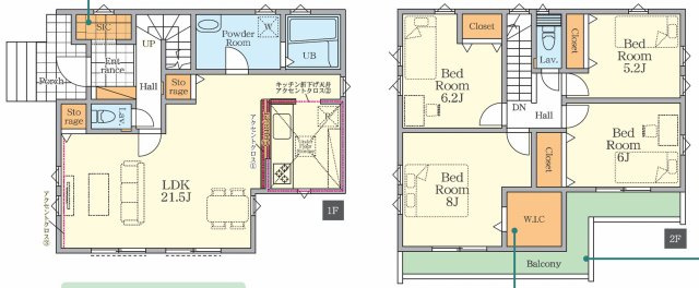
4LDK
LDK 21.5帖 1室 / 洋室 8.0帖 1室 / 洋室 6.0帖 1室 / 洋室 6.2帖 1室 / 洋室 5.2帖 1室 / |
||
| 築年月(築年数) | 2026年 1月(建築中) | 主要採光面 | 南 |
| 建物構造 | 木造 | 階数 | 2階建 |
| 私道負担面積 | セットバック | ||
| 接道状況 | 角地 (北西側 公道4.4m 間口6.8m) (南西側 公道6.0m 間口9.0m) | ||
| 建ぺい率/容積率 | 50%/ 100% | 土地権利 | 所有権 |
| 地目 | 宅地 | 地勢 | |
| 土地の権利形態 | |||
| 都市計画 | 市街化区域 | 用途地域 | 第一種住居地域 |
| その他法令上の制限 | |||
| 国土法届出 | 不要 | 取引態様 | 仲介 |
| 現況 | 未完成 | 引渡し | |
| 駐車場 | 空き台数:3台 、 有、形式:自走式 | ||
| 設備条件 | 公共下水 / 公営水道 / 閑静な住宅地 / 都市ガス / 陽当り良好 / 眺望良好 / ファミリー向け / 室内洗濯機置場 / 24時間換気システム / 電気有 / ガスコンロ / コンロ2口以上 / システムキッチン / 対面式キッチン / コンロ3口 / バス・トイレ別 / 追焚機能浴室 / 浴室乾燥機 / 温水洗浄便座 / 洗面台 / トイレ2ヶ所 / 浴室1坪以上 / 独立洗面台 / 床下収納 / ウォークインクロゼット / 収納豊富 / TVモニタ付インターホン / 複層ガラス / ディンプルキー | ||
| その他条件 | |||
| 備考 |
フラット35にも対応、 住宅ローンの選択肢が、ちょっと多くなりますね 金利の上昇にドキドキしたくない、ゆるゆるゆったり返済したい! 住宅ローンのプロフェッショナルと膝を突き合わせて、じっくり相談しましょう |
||
| 周辺の学校 | |||
| 建築確認番号 | 第25UDI1W建04479号 | 物件番号 | 97654644 |
| 情報公開日 | 2026年1月5日 | 次回更新予定日 | 2026年1月19日 |
| 取引条件の有効期限 | 2026年1月19日 | ||
| 取扱い会社 |
株式会社東峰 〒270-2251 千葉県松戸市金ケ作408-333 千葉県知事(1)第17953号 (公社)首都圏不動産公正取引協議会 |
||
047-710-7016
営業時間:9:30~18:30 / 定休日:水
| 所在地 | 物件の住所を表示。(詳細住所は表示していない場合もある) | ||
|---|---|---|---|
| 交通 | 物件(部屋)の沿線駅・バス停を表示。(複数駅・バス停の利用が可能な場合は最大3件まで) | ||
| 間取り/詳細 | 数字は居室数を表示。LDKはそれぞれ「リビング」「ダイニング」「キッチン」、S(納戸)とは「納戸」「サービスルーム」「マルチルーム」「フリールーム」など建築基準法第28条に適合していないため、居室と認められない納戸その他の部分を表す。 | ||
| 価格 | 販売されている住戸の価格を表示。仲介手数料は含まない。 | ||
| 管理費 | 共同住宅の設備その他共用部分の維持および管理をするために必要な費用を表示。 | ||
| 修繕積立金 | 共用部分の修繕のために積立てる金額を表示。 | ||

新築一戸建住宅
| 価格 |
値下げ:2025/12/23 4,999 万円 | ||
|---|---|---|---|
| 間取り | 4LDK | 築年月(築年数) | 2025年 10月 (新築) |
| 建物面積 | 109.55㎡ | 土地面積 | 215.27㎡ |
| 住所 | 千葉県柏市東中新宿4丁目 | ||
| 交通 |
東武野田線「新柏」駅 徒歩14分 常磐緩行線「南柏」駅
|
||
【外観パース】